
Τρισδιάστατη γεωμετρική αποτύπωση κατασκευών
Δραστηριοποιούμαστε στην Κρήτη με την τρισδιάστατη γεωμετρική και φωτορεαλιστική αποτύπωση κατασκευών απο τις αρχές του 2021.
Χρησιμοποιώντας 3D laser scanner, drone και εξειδικευμένο εξοπλισμό και προγράμματα, προσφέρουμε υπηρεσίες αποτύπωσης υψηλής ακρίβειας και πιστότητας ακόμα και για τις πλέον απαιτητικές περιπτώσεις.
Μας εμπιστεύονται συνάδελφοι μηχανικοί, επιχειρηματίες του χώρου των κατασκευών και του τουρισμού, δημόσιοι φορείς, εκπαιδευτικά ιδρύματα και πολλοί ακόμα.
Παραδοτέα
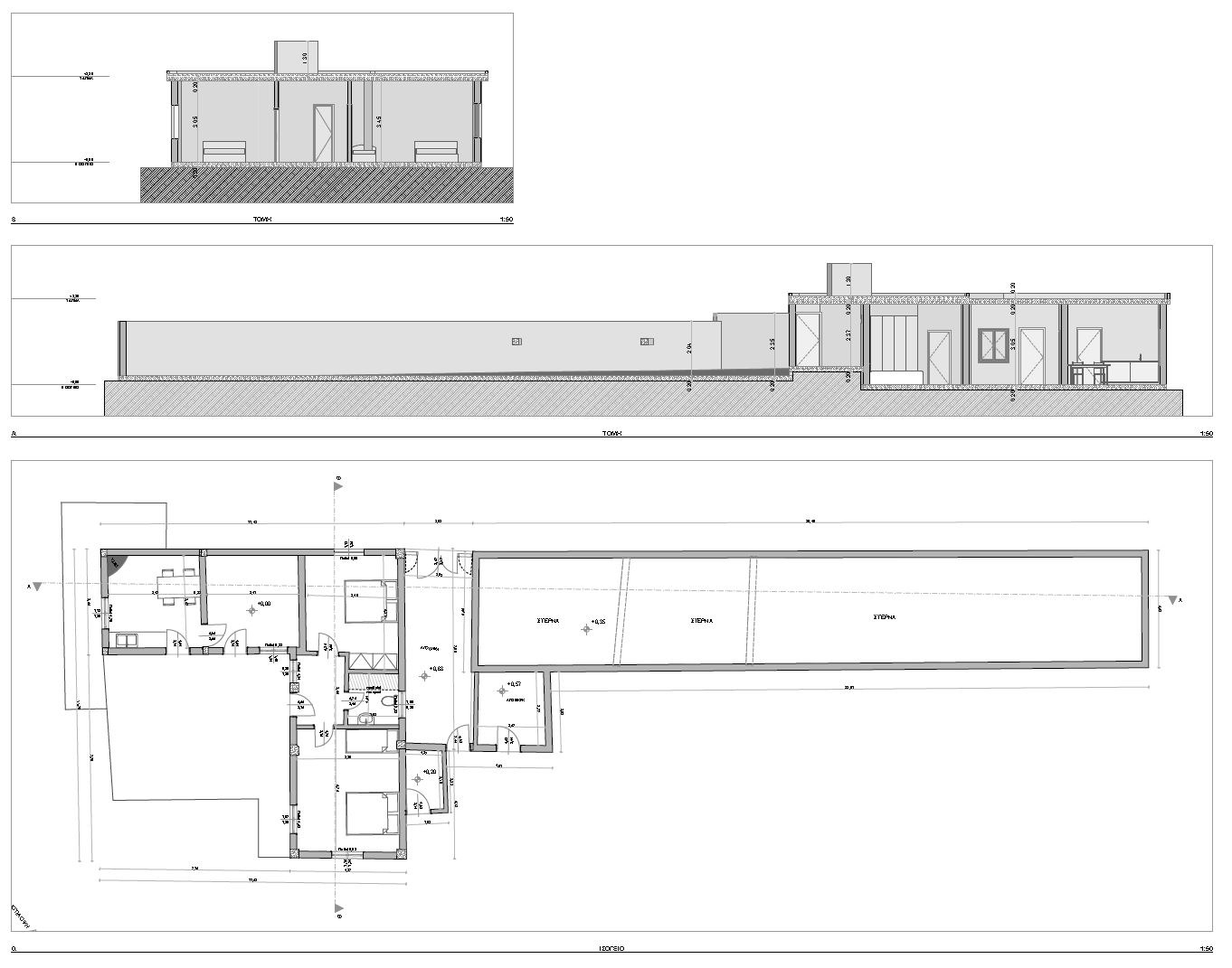
Αρχιτεκτονικά σχέδια
Κατόψεις, όψεις και τομές σε οποιαδήποτε θέση.
Μετρήσεις γεωμετρικών μεγεθών και αποκλίσεων επιπεδότητας
Διαστάσεις και γωνίες σε οποιαδήποτε θέση. Οπτικοποίηση υψομετρικών διαφορών σε επιφάνειες δωμάτων.




Νέφος σημείων (point cloud)
Αναπαριστά όλες τις επιφάνειες σε εκατομμύρια σημεία στον χώρο. Η απλούστερη μορφή παραδοτέου, εύκολα και γρήγορα επεξεργάσιμη.
Ορθοεικόνες απο αεροφωτογράφιση
Ιδιαίτερα χρήσιμες για τη ρεαλιστική αποτύπωση σε οριζόντιο (κάθετα στην επιφάνεια του εδάφους) ή κατακόρυφο επίπεδο (π.χ. όψεις κτηρίων) σε υψηλή ανάλυση, χωρίς παραμορφώσεις και γεωαναφερμένες στο ΕΓΣΑ87. Έτοιμες για μετρήσεις ακριβείας (συντεταγμένων, διαστάσεων κλπ.)
Ψηφιακό μοντέλο επιφανείας (DEM) & Ψηφιακό μοντέλο εδάφους (DSM)
Αναπαράσταση του εδαφικού ανάγλυφου με πλήρη γεωμορφολογικά χαρακτηριστικά και ακριβή δεδομένα για υψόμετρα και κλίσεις, στην οποία ξεχωρίζουν χρωμματικά τα υψηλότερα απο τα χαμηλότερα σημεία.




Βίντεο εικονικής περιήγησης
Ένα σύντομης διάρκειας βίντεο που μπορούν να το παρακολουθήσουν οι πελάτες μας απο οποιονδήποτε υπολογιστή ή κινητό τηλέφωνο.

Τρισδιάστατα μοντέλα
Αναπαριστούν τρισδιάστατα τη γεωμετρία των κατασκευών ή του εδάφους, περιλαμβάνοντας την υφή και το χρώμα των επιφανειών τους. Χρήσιμο σε αρχιτέκτονες για τα αρχικά στάδια της μοντελοποίησης, αφού δεν χρειάζεται να βασίζονται στο Google Earth ή σε ισοϋψείς απο τοπογραφικά για να εισάγουν το ανάγλυφο του εδάφους.
Τεκμηρίωση χρονικής εξέλιξης απο ορθοεικόνες
Παρακολούθηση χρονικής εξέλιξης μέσω σύγκρισης υψηλής ανάλυσης ορθοεικόνων. Ιδιαίτερα χρήσιμη για τεκμηρίωση προόδου εργασιών σε εργοτάξια.
